
Opis: "OdNedavna" je osvan'o ovaj pano ( "kažedu" neki - bilbord... ), a "naDrum sas" leve strane u "pravac" Novog Bečeja...
"Kav" što vidite, radi se o "predctavljanju" buduće Industrijske zone - JUG, za koju je "komplektna papirologija gotava" i uskoro bi trebalo da se "kreće u rejalizaciju"...
"Sas" zadovoljstvom Vam možemo kaz'ti, da zainteresovani' firmi već ima, kako domaći', tako i "stranjski" !!!Da bi se orijentisali "di" je to, evo "kav" prvo - izvoda iz "obštinskog" Prostornog plana, "di" je taj prostor "okružen sas crvenim":
Na "sledeći crtež" se bolje vidi u odnos' na selo, čije su granice "izCrtate isPrikidanom", plavom "lenijom"...
Katastarsko - topografski, sama zona trenutno ovako izgleda:
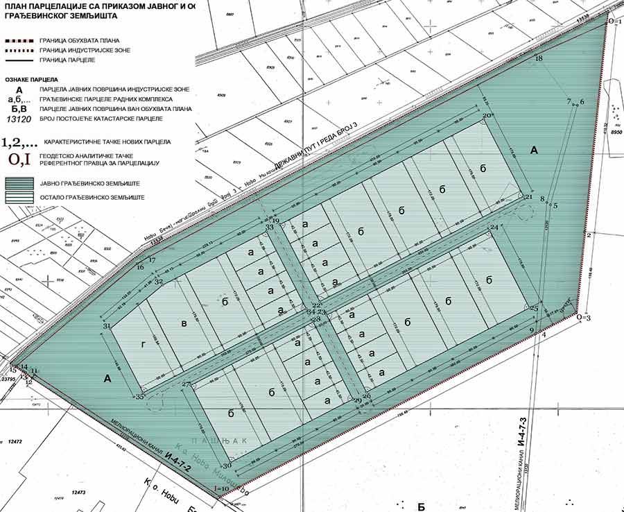
E..., evo kako bi to sve trebalo da izgleda: "lila" farba "preKaziva" parcele u "indstrijsku zonu", bela "putove", a zelena - zelenilo !!!
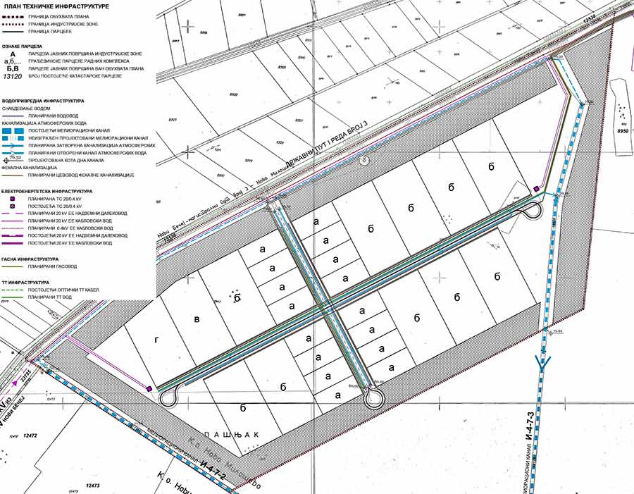
Dalje, evo i plana za "savobraćajnu" strukturu, "atnosfersku" kanalizaciju, regulaciju i nivelaciju:
Plan "tekničke štrukture":
Veličine "placova" se mogu "viditi na sledeći crtež":
A evo i kako će izledati "sokak uTu zonu", u "poprečni presek":
"Papirologiju" možete "skiniti", ako kliknete "OVDENA" [ 1.6 MB ]... il' "sas" stranice DownLoad, iz tabele - Razno...
P.S. - čisto da vas "podcetimo", da već "odavna naNaš" sajt "postojidu" dve stranice "oToj" zoni ( uz napomenu, da je prvi zeleni deo već izgrađen i prodat... ) i to na "srbski" i "engleski"
| Copyright © Dragan Belic - | ![]() |
- All right reserved |
| Vaš mâli prilog, "mlogo" znači, a u cilju "dâljnjog, svakodnevnog izlaženja" ovog sajta !!! | ![]() |
| Link sponzora |
Link sponzora |
... |
![]() |
![]() |
![]() |
|
Arhiva Slika dana: - po mesecima !!! - po godinama !!! |
![]() |
![]() |
![]() |
|
DownLoad-ujte, odštampajte i "nalepte digođ naZid aktualni novoMiloševački" kalendar za tekući mesec... |
|